University Heights
Tower 1
5/F
Flat A
Land Reg.
location
42 Kotewall Road, Mid-Levels West
Reg. Date: 25/03/2026
Land Reg.
University Heights
Tower 1
5/F
Flat A
Land Reg.
location
42 Kotewall Road, Mid-Levels West
Reg. Date: 25/03/2026
Land Reg.
Price$67.1M
Reg. Date: 25/03/2026
SFA:
1,508ft²
$44,496/ft²
Estate
3Room(s)
6.5 Year(s)
Vendor /
Holding company of the Vendor
Vendor:
University Heights Holding Ltd.
Holding Company Of The Vendor:
Chinachem Investment Company Limited
Hoi Tung Investment Company Limited
Feature
Transaction History
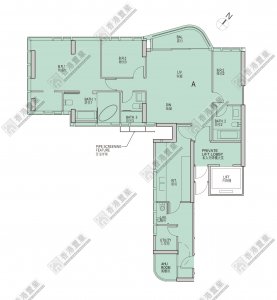
Floor Plan

Transaction History
Contract Date
Price(HK$)
Price/ft² (Saleable)
Price/ft² (Gross)
Change
24/03/26
Price/ft² (Saleable)
$67.1M
$44,496
1.7%
05/01/23
Price/ft² (Saleable)
$66M
$43,767
Floor plan
^Special Transaction