Mary Court
13/F
Flat A
Land Reg.
location
376-380 King's Road, North Point / North Point Mid-Levels
Reg. Date: 21/03/2024
Land Reg.
Mary Court
13/F
Flat A
Land Reg.
location
376-380 King's Road, North Point / North Point Mid-Levels
Reg. Date: 21/03/2024
Land Reg.
Transaction History
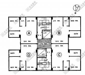
Floor Plan

Transaction History
Contract Date
Price(HK$)
Price/ft² (Saleable)
Price/ft² (Gross)
Change
21/03/24
Price/ft² (Saleable)
$3.38M
$9,548
102.4%
03/06/09
Price/ft² (Saleable)
$1.67M
$4,718
12.8%
20/02/09
Price/ft² (Saleable)
$1.48M
$4,181
Floor plan
^Special Transaction