FINNIE
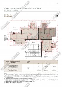
27/F
Flat B
Reg. of Trans.
Firsthand
location
9 Finnie Street, Quarry Bay
Contract Date: 11/12/2025
Reg. of Trans.
Firsthand
FINNIE
27/F
Flat B
Reg. of Trans.
Firsthand
location
9 Finnie Street, Quarry Bay
Contract Date: 11/12/2025
Reg. of Trans.
Firsthand
Price$9.57M
Contract Date: 11/12/2025
Area (SFA)364ft²
$26,302/ft²
Estate
2Room(s)
Vendor /
Holding company of the Vendor
The Vendor:
Best Equity Limited
The Holding Companies Of The Vendor:
Lion Oasis Holdings Limited
Bliss Sail Limited
More Action Investments Limited
Sparkle Hope Limited
Miracle Cheer Limited
Wang On Properties Limited
Earnest Spot Limited
Wang On Enterprises (Bvi) Limited
Wang On Group Limited
Feature
Transaction History
Floor Plan

Transaction History
Contract Date
Price(HK$)
Price/ft² (Saleable)
Price/ft² (Gross)
Change
11/12/25
Price/ft² (Saleable)
$9.57M
$26,302
Floor plan
^Special Transaction