FINNIE
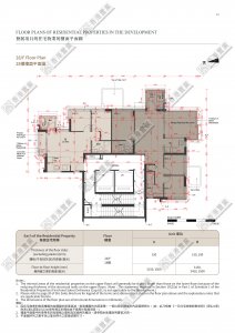
28/F
Flat B
Land Reg.
Firsthand
location
9 Finnie Street, Quarry Bay
Reg. Date: 24/10/2025
Land Reg.
Firsthand
FINNIE
28/F
Flat B
Land Reg.
Firsthand
location
9 Finnie Street, Quarry Bay
Reg. Date: 24/10/2025
Land Reg.
Firsthand
Price$11.92M
Reg. Date: 24/10/2025
Area (SFA)405ft²
$29,422/ft²
Estate
2Room(s)
Vendor /
Holding company of the Vendor
The Vendor:
Best Equity Limited
The Holding Companies Of The Vendor:
Lion Oasis Holdings Limited
Bliss Sail Limited
More Action Investments Limited
Sparkle Hope Limited
Miracle Cheer Limited
Wang On Properties Limited
Earnest Spot Limited
Wang On Enterprises (Bvi) Limited
Wang On Group Limited
Feature
Transaction History
Floor Plan

Transaction History
Contract Date
Price(HK$)
Price/ft² (Saleable)
Price/ft² (Gross)
Change
24/10/25
Price/ft² (Saleable)
$11.92M
$29,422
Floor plan
^Special Transaction