Peak Castle
Kwun Fat Street (House)
Land Reg.
location
Kwun Fat Street, Tuen Mun
Reg. Date: 02/04/2025
Land Reg.
Peak Castle
Kwun Fat Street (House)
Land Reg.
location
Kwun Fat Street, Tuen Mun
Reg. Date: 02/04/2025
Land Reg.
Price$32M
Reg. Date: 02/04/2025
Area (SFA)2,673ft²
$11,972/ft²
Estate
3Room(s)
9.1 Year(s)
Vendor /
Holding company of the Vendor
Vendor:
Billion Ideal Limited
Holding Company Of The Vendor:
Emperor International Holdings Limited
Emperor Property Investment Limited
Feature
Transaction History
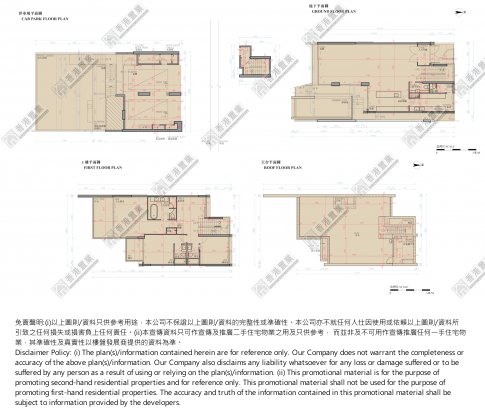
Floor Plan

Transaction History
Contract Date
Price(HK$)
Price/ft² (Saleable)
Price/ft² (Gross)
Change
02/04/25
Price/ft² (Saleable)
$32M
$11,972
-57.3%
16/08/18
Price/ft² (Saleable)
$75M
$28,058
Floor plan
^Special Transaction