工商舖
按揭轉介
信貸服務
繁體
繁體中文
简体中文
English
登入
註冊
分行位置
2316-3088
主頁
成交
天巒
天巒
II期
古洞路33號〈獨立屋〉
註冊處成交
location
上水 / 粉嶺 古洞路
分享給朋友
註冊日期: 24/11/2025
註冊處成交
主頁
成交
天巒
天巒
II期
古洞路33號〈獨立屋〉
註冊處成交
location
上水 / 粉嶺 古洞路
分享給朋友
註冊日期: 24/11/2025
註冊處成交
分享給朋友
成交價
$2,260
萬
註冊日期: 24/11/2025
實用
1,818呎
$12,431/呎
屋苑
天巒
II期
4房
16.1年
賣方/ 賣方的控權公司
賣方 兆興投資有限公司 賣方的控權公司 Ximston Finance S.A. Sunrise Holdings Inc. 新鴻基地產發展有限公司
特色
連花園
連天台
連平台
連露台
單位歷史成交
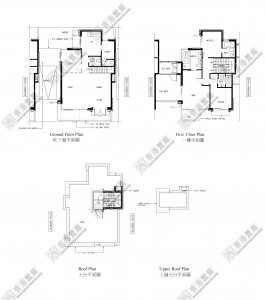
平面圖
單位歷史成交
成交日期
成交價
實用呎價
建築呎價
升跌(較上次)
23/11/25
實用呎價
$2,260萬
$12,431
-17.8%
29/07/18
實用呎價
$2,750萬
$15,127
-10.3%
11/11/10
實用呎價
$3,064萬
$16,854
平面圖
^特殊成交個案