工商舖
按揭轉介
信貸服務
繁體
繁體中文
简体中文
English
登入
註冊
分行位置
2316-3088
主頁
成交
棗梨雅道3號
棗梨雅道3號
29&30樓
A室
註冊處成交
一手
location
何文田 棗梨雅道3號
分享給朋友
註冊日期: 14/01/2021
註冊處成交
一手
主頁
成交
棗梨雅道3號
棗梨雅道3號
29&30樓
A室
註冊處成交
一手
location
何文田 棗梨雅道3號
分享給朋友
註冊日期: 14/01/2021
註冊處成交
一手
分享給朋友
成交價
$5,000
萬
註冊日期: 14/01/2021
實用
1,885呎
$26,525/呎
屋苑
棗梨雅道3號
5房
10.3年
賣方/ 賣方的控權公司
賣方 昌英有限公司 賣方控權公司 ‧ Task Success Limited ‧ Pena Investments Limited
特色
複式
連車位
連天台
連平台
連露台
連工作平台
單位歷史成交
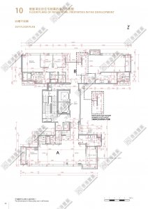
平面圖
單位歷史成交
成交日期
成交價
實用呎價
建築呎價
升跌(較上次)
14/01/21
實用呎價
$5,000萬
$26,525
平面圖
^特殊成交個案