工商舖
按揭轉介
信貸服務
繁體
繁體中文
简体中文
English
登入
註冊
分行位置
2316-3088
主頁
成交
高雅軒
高雅軒
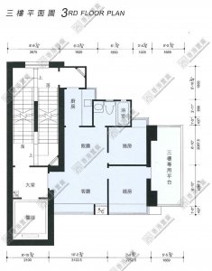
3樓
註冊處成交
location
土瓜灣 高山道38A號
分享給朋友
註冊日期: 04/11/2025
註冊處成交
主頁
成交
高雅軒
高雅軒
3樓
註冊處成交
location
土瓜灣 高山道38A號
分享給朋友
註冊日期: 04/11/2025
註冊處成交
分享給朋友
成交價
$348
萬
註冊日期: 04/11/2025
實用
292呎
$11,918/呎
屋苑
高雅軒
2房
26.5年
賣方/ 賣方的控權公司
賣方: 福捷發展有限公司
特色
連平台
單位歷史成交
平面圖
單位歷史成交
成交日期
成交價
實用呎價
建築呎價
升跌(較上次)
04/11/25
實用呎價
$348萬
$11,918
95.5%
14/06/10
實用呎價
$178萬
$6,096
15.8%
08/10/99
實用呎價
$154萬
$5,264
平面圖
^特殊成交個案