工商舖
按揭轉介
信貸服務
繁體
繁體中文
简体中文
English
登入
註冊
分行位置
2316-3088
主頁
成交
逸翠軒
逸翠軒
6座
3樓
C室
註冊處成交
location
洪水橋 沙井路38號
分享給朋友
註冊日期: 10/02/2025
註冊處成交
主頁
成交
逸翠軒
逸翠軒
6座
3樓
C室
註冊處成交
location
洪水橋 沙井路38號
分享給朋友
註冊日期: 10/02/2025
註冊處成交
分享給朋友
成交價
$392
萬
註冊日期: 10/02/2025
實用
619呎
$6,333/呎
屋苑
逸翠軒
23年
特色
連車位
單位歷史成交
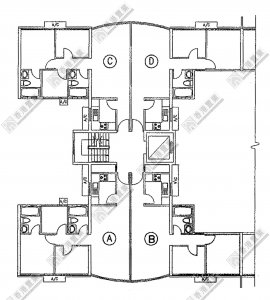
平面圖
單位歷史成交
成交日期
成交價
實用呎價
建築呎價
升跌(較上次)
10/02/25
實用呎價
$392萬
$6,333
145.0%
22/05/03
實用呎價
$160萬
$2,585
平面圖
^特殊成交個案